Réhabilitation de la gare du Pont de Flandre (août 2017)
Le bâtiment des voyageurs de la gare du Pont de Flandre, propriété de RFF, a fait l’objet d’un squat entre octobre 2009 et 2011 par un collectif d’artistes. Ce squat portait le nom de « la Gare aux Gorilles ».
La SNCF et la Mairie de Paris ont lancé en 2014 un appel à projet pour l’achat et l’utilisation de cette gare. Le projet retenu est « Les Cheminots-La Gare [1] », qui comporte un club de jazz et de musiques improvisées, un restaurant, un bar, une salle polyvalente de répétition musique et spectacle vivant, et est tourné vers le quartier et l’action culturelle de proximité. [2] Il est porté par une équipe dirigée par Julien de Casabianca-Caumer, qui gère déjà le Laboratoire de la Création.
Initialement annoncée pour le printemps 2015, l’ouverture de ce nouveau lieu est reportée à l’automne 2016. Les travaux ont commencé en janvier 2016. En février 2017, l’ouverture est annoncée pour octobre 2017. L’explication donnée pour le retard dans les travaux est que les attentats de 2015 ont provoqué le départ d’une partie des investisseurs du projet, ce qui a nécessité la recherche de nouveaux investisseurs [3].
Ce projet s’intègre aujourd’hui dans le plan-programme du protocole-cadre signé au printemps 2015 par la SNCF et la Ville de Paris. Une demande a été effectuée par les porteurs de ce projet auprès d’ABCD Culture et de la Ville de Paris pour l’utilisation des quais, des talus et de la plate-forme de la Petite Ceinture entre le pont de la rue de Flandre et la grille actuelle du chantier de Rosa Parks, située à la hauteur de la rue de Cambrai (cliquer ici pour voir une vue aérienne du site). La couverture des voies n’est pas prévue. Des jardins partagées et individuels sont prévues sur les talus.
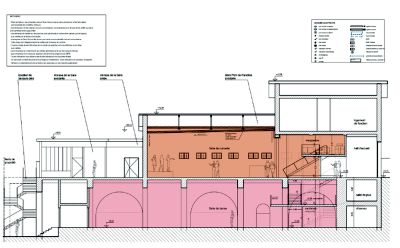
L’aménagement du bâtiment des voyageurs comporte deux niveaux :
- Le niveau des quais accueille une salle de concert avec bar et restauration, pour des animations peu bruyantes.
- Le sous-sol, c’est à dire la structure porteuse en maçonnerie du bâtiment, accueille une salle pour des bals (le vendredi et le samedi soir) et des concerts de musiques plus bruyantes.
En attendant l’ouverture du lieu, le bâtiment est gardé afin d’éviter les squats.
Voir aussi le compte-rendu de la réunion de « concertation » organisée par la Mairie du 19e arrondissement le 19 novembre 2015, où ce projet a été évoqué dans le contexte du procotole-cadre de 2015.
Août 2017 : l’ouverture est annoncée pour le vendredi 25 août 2017. Voir ici la page Facebook du lieu.

- Vue de l’aménagement prévu de la station Pont de Flandre
- Le bâtiment des voyageurs est réhabilité en lieu culturel.

- Projet d’expansion de la rénovation de la station Pont de Flandre sur les quais
- Projet présenté lors de la réunion de consultation du 19 novembre 2015 à la Mairie du 19e arrondissement.

- Permis de construire pour la rénovation du bâtiment des voyageurs de la station Pont de Flandre
- Cliché : Bruno Bretelle tous droits réservés.

- Panneau annonçant l’ouverture du projet de la gare du Pont de Flandre
- 3 août 2017. Cliquer pour agrandir.
Association Sauvegarde Petite Ceinture
Au cœur de l’Île de France, une ligne ferroviaire circulaire pour les mobilités écologiques de demain.

